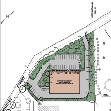
Land
71,979 Sqft
Basic
Details
Property Type:
Land
Listing Type:
For Sale
Price:
$850,000
Square Footage:
71,979 Sqft
Lot Area:
1.65 Acre
Listing ID:
73441123
Features
Sewer
At Street,
Water
At Street,
Electric Feature
At Street,
Gas
At Street,
Additional
Information
Market Time:
4
Tax Year:
2025
Status:
Active
Zoning:
I
Orig Price:
$850,000
Address
Map
Country:
US
State:
MA
County:
Worcester
City:
Northborough
Postal Code:
01532
Longitude:
W72° 22' 12.4''
Latitude:
N42° 21' 15.7''
Agent
Info
No Image
Stephen E. Robb
www.RobbEnterprises.com
617-212-0251
srobb@robbenterprises.com