Get Natick and Metrowest Listings and Market Information

Work with Robb Enterprises real estate to buy, sell, or lease property that is right for you

  • Properties
    • For Rent
    • For Sale
    • Vacation Rental
    • Commercial
  • Specialty Properties
    • Natick New Construction
    • Natick Waterfront
    • Apartments for Rent in Natick MA 01760
    • Section 8 Advertised Properties
  • Agents
  • Compare
  • Blog
  • Contact Us

Properties

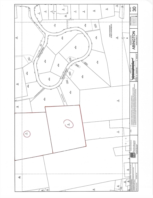
  • 0 Bedford Street, Abington, Massachusetts, ,Land,For Sale,Bedford Street,73346128
Property Description

29 acres zoned R20, comprising 2 parcels of 12.6 acres and 16.4 acres. tax and assessment figures are both parcels combined. parcels found on town assessors plans map 30 parcels 001 and 002. Perfect for apartments, condos, over 55 development ???? Buyer/buyer agent responsible for all due diligence.

Features
Sewer:
Nearby
Water:
Nearby
Disclosure
Electric Feature:
Nearby
Gas:
Nearby
Additional Information
Market Time:
354
Tax Year:
2025
Status:
Active
Zoning:
R20
Orig Price:
$1,850,000
Waterfront:
No
MlsStatus:
Active
Address Map
City:
Abington
State:
MA
County:
Plymouth
Postal Code:
02351
Longitude:
W71° 3' 2.9''
Latitude:
N42° 6' 15''
  • Google Map

Land

0 Bedford Street, Abington, Massachusetts

1,263,240 Sqft
$1,850,000
Listing ID #73346128
Basic Details
Property Type :
Land
Listing Type :
For Sale
Price :
$1,850,000
Square Footage :
1,263,240 Sqft
Lot Area :
29 Acre
Listing ID :
73346128
  • Share on Facebook
  • Share on Twitter
  • Share on Pinterest
  • PDF
  • Send to Friend
  • Request a Visit
Agent info
Robb Enterprises
  • Stephen E. Robb
  • View website
  • 617-212-0251
  • srobb@robbenterprises.com

Contact Agent

The property listing data and information set forth herein were provided to MLS Property Information Network, Inc. from third party sources, including sellers, lessors and public records, and were compiled by MLS Property Information Network, Inc. The property listing data and information are for the personal, non commercial use of consumers having a good faith interest in purchasing or leasing listed properties of the type displayed to them and may not be used for any purpose other than to identify prospective properties which such consumers may have a good faith interest in purchasing or leasing. MLS Property Information Network, Inc. and its subscribers disclaim any and all representations and warranties as to the accuracy of the property listing data and information set forth herein.

Realtyna

Copyright © 2026