Get Natick and Metrowest Listings and Market Information

Work with Robb Enterprises real estate to buy, sell, or lease property that is right for you

  • Properties
    • For Rent
    • For Sale
    • Vacation Rental
    • Commercial
  • Specialty Properties
    • Natick New Construction
    • Natick Waterfront
    • Apartments for Rent in Natick MA 01760
    • Section 8 Advertised Properties
  • Agents
  • Compare
  • Blog
  • Contact Us

Properties

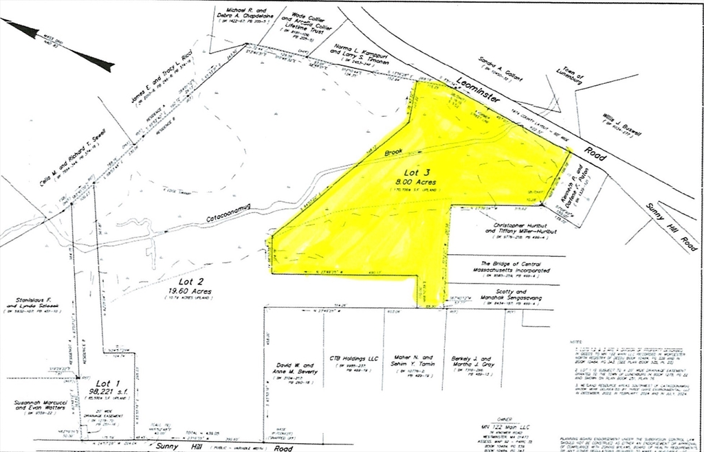
  • Lot 3 Leominster Road, Lunenburg, Massachusetts, ,Land,For Sale,Leominster Road,73490206
Property Description

Discover the perfect opportunity to build your dream home on this approved 8-acre building lot in desirable Lunenburg, MA. With town water and sewer already in place and the betterment fully paid, this property is shovel ready for its next owner. Tucked away in a peaceful setting yet conveniently located near local amenities, this large lot offers both privacy and flexibility. Zoning may allow for a duplex, making it an excellent option for multi-generational living, or those seeking additional income potential. This property provides a rare combination of size and convenience. Don’t miss this chance to break ground just in time for Spring—opportunities like this don’t come around often!

Features
Sewer:
Public Sewer
Water:
Public
Disclosure:
basement takes on some water with heavy rains
Electric Feature:
At Street
Road Type:
Paved
Gas:
No
Additional Information
Market Time:
5
Tax Year:
2026
Status:
Active
Zoning:
Res
Orig Price:
$150,000
Waterfront:
No
MlsStatus:
Active
Address Map
City:
Lunenburg
State:
MA
County:
Worcester
Postal Code:
01462
Longitude:
W72° 16' 33.9''
Latitude:
N42° 35' 35.5''
  • Google Map

Land

Lot 3 Leominster Road, Lunenburg, Massachusetts

8 Acre
$150,000
Listing ID #73490206
Basic Details
Property Type :
Land
Listing Type :
For Sale
Price :
$150,000
Lot Area :
8 Acre
Listing ID :
73490206
  • Share on Facebook
  • Share on Twitter
  • Share on Pinterest
  • PDF
  • Send to Friend
  • Request a Visit
Agent info
Robb Enterprises
  • Stephen E. Robb
  • View website
  • 617-212-0251
  • srobb@robbenterprises.com

Contact Agent

The property listing data and information set forth herein were provided to MLS Property Information Network, Inc. from third party sources, including sellers, lessors and public records, and were compiled by MLS Property Information Network, Inc. The property listing data and information are for the personal, non commercial use of consumers having a good faith interest in purchasing or leasing listed properties of the type displayed to them and may not be used for any purpose other than to identify prospective properties which such consumers may have a good faith interest in purchasing or leasing. MLS Property Information Network, Inc. and its subscribers disclaim any and all representations and warranties as to the accuracy of the property listing data and information set forth herein.

Similar Properties

201 New West Townsend Rd, Lunenburg, Massachusetts, ,Land,For Sale,New West Townsend Rd,73495429

Land

201 New West Townsend Rd, Lunenburg, Massachusetts

More
365 Hollis Hill Road, Lunenburg, Massachusetts, ,Land,For Sale,Hollis Hill Road,73471005

Land

365 Hollis Hill Road, Lunenburg, Massachusetts

More
77 Electric Ave, Lunenburg, Massachusetts, ,Land,For Sale,Electric Ave,73469777

Land

77 Electric Ave, Lunenburg, Massachusetts

More
895 Flat Hill Rd, Lunenburg, Massachusetts, ,Land,For Sale,Flat Hill Rd,73465929

Land

895 Flat Hill Rd, Lunenburg, Massachusetts

More
759 Northfield Rd, Lunenburg, Massachusetts, ,Land,For Sale,Northfield Rd,73270222

Land

759 Northfield Rd, Lunenburg, Massachusetts

More
Realtyna

Copyright © 2026