Get Natick and Metrowest Listings and Market Information

Work with Robb Enterprises real estate to buy, sell, or lease property that is right for you

  • Properties
    • For Rent
    • For Sale
    • Vacation Rental
    • Commercial
  • Specialty Properties
    • Natick New Construction
    • Natick Waterfront
    • Apartments for Rent in Natick MA 01760
    • Section 8 Advertised Properties
  • Agents
  • Compare
  • Blog
  • Contact Us

Properties

  • 15 Barbara St Lowell, Ma, Lowell, Massachusetts, ,Land,For Sale,Barbara St Lowell, Ma,73472403
  • 15 Barbara St Lowell, Ma, Lowell, Massachusetts, ,Land,For Sale,Barbara St Lowell, Ma,73472403
Property Description

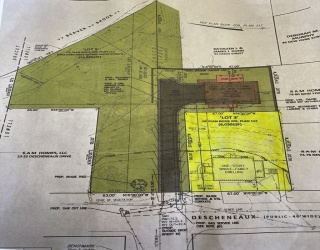
Rare opportunity to own a buildable 8,712 sq ft flat lot in Pawtucketville! Located at 15 Barbara St, Lowell, MA, this property offers a prime setting with street frontage on two sides. Close to Lowell General Hospital, shopping, schools, the River Walkway, and outdoor recreation including Dracut State Forest. Convenient access to Lowell, Tyngsboro, and surrounding areas. Gas, electricity, public water, and sewer are available on the street. Possible buildable lot with required city permits and approvals. Ideal for investors, builders, or buyers looking to construct a custom home. Buyer to verify zoning, utilities, and buildability. A great opportunity to hold, build equity, or develop in a desirable neighborhood.

Features
Sewer:
Nearby
Water:
Public
Electric Feature:
Nearby
Gas:
Nearby
Additional Information
Area:
Pawtucketville
Market Time:
10
Tax Year:
2025
Status:
Active
Zoning:
SSF
Orig Price:
$179,000
Waterfront:
No
MlsStatus:
Active
Address Map
City:
Lowell
State:
MA
County:
Middlesex
Postal Code:
01854
Longitude:
W72° 39' 16''
Latitude:
N42° 38' 45.2''
  • Google Map

Land

15 Barbara St Lowell, Ma, Lowell, Massachusetts

0.20 Acre
$179,000
Listing ID #73472403
Basic Details
Property Type :
Land
Listing Type :
For Sale
Price :
$179,000
Lot Area :
0.20 Acre
Listing ID :
73472403
  • Share on Facebook
  • Share on Twitter
  • Share on Pinterest
  • PDF
  • Send to Friend
  • Request a Visit
Agent info
Robb Enterprises
  • Stephen E. Robb
  • View website
  • 617-212-0251
  • srobb@robbenterprises.com

Contact Agent

The property listing data and information set forth herein were provided to MLS Property Information Network, Inc. from third party sources, including sellers, lessors and public records, and were compiled by MLS Property Information Network, Inc. The property listing data and information are for the personal, non commercial use of consumers having a good faith interest in purchasing or leasing listed properties of the type displayed to them and may not be used for any purpose other than to identify prospective properties which such consumers may have a good faith interest in purchasing or leasing. MLS Property Information Network, Inc. and its subscribers disclaim any and all representations and warranties as to the accuracy of the property listing data and information set forth herein.

Similar Properties

38-49 Casco St, Lowell, Massachusetts, ,Land,For Sale,Casco St,73388270

Land

38-49 Casco St, Lowell, Massachusetts

More
Realtyna

Copyright © 2026