Get Natick and Metrowest Listings and Market Information

Work with Robb Enterprises real estate to buy, sell, or lease property that is right for you

  • Properties
    • For Rent
    • For Sale
    • Vacation Rental
    • Commercial
  • Specialty Properties
    • Natick New Construction
    • Natick Waterfront
    • Apartments for Rent in Natick MA 01760
    • Section 8 Advertised Properties
  • Agents
  • Compare
  • Blog
  • Contact Us

Properties

  • 23 Coyne St, Clinton, Massachusetts, ,Land,For Sale,Coyne St,73473674
  • 23 Coyne St, Clinton, Massachusetts, ,Land,For Sale,Coyne St,73473674
  • 23 Coyne St, Clinton, Massachusetts, ,Land,For Sale,Coyne St,73473674
Property Description

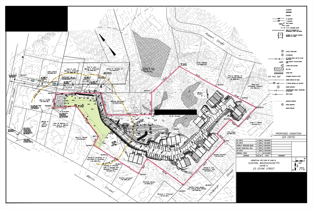
Prime development opportunity in Clinton! This expansive 5.15-acre parcel at 23 Coyne Street offers town water and sewer access in an established residential neighborhood; ideal for discerning developers, investors, or companies seeking premier land. The site is primed for up to 24 homeownership units, including a required affordable component, addressing local housing needs. This rare, large lot presents exceptional upside for thoughtful, high-quality development. Don’t miss this blank canvas in a convenient commuter location! NOTE: DRONE FOOTAGE COMING WEDNESDAY!

Features
Sewer:
Other
Water:
Other
Disclosure
Electric Feature:
No
Gas:
Other (see Remarks)
Additional Information
Market Time:
9
Tax Year:
2026
Status:
Active
Zoning:
1300
Orig Price:
$850,000
Waterfront:
No
MlsStatus:
Active
Address Map
City:
Clinton
State:
MA
County:
Worcester
Postal Code:
01510
Longitude:
W72° 19' 44''
Latitude:
N42° 24' 27.6''
  • Google Map

Land

23 Coyne St, Clinton, Massachusetts

5.16 Acre
$850,000
Listing ID #73473674
Basic Details
Property Type :
Land
Listing Type :
For Sale
Price :
$850,000
Lot Area :
5.16 Acre
Listing ID :
73473674
  • Share on Facebook
  • Share on Twitter
  • Share on Pinterest
  • PDF
  • Send to Friend
  • Request a Visit
Agent info
Robb Enterprises
  • Stephen E. Robb
  • View website
  • 617-212-0251
  • srobb@robbenterprises.com

Contact Agent

The property listing data and information set forth herein were provided to MLS Property Information Network, Inc. from third party sources, including sellers, lessors and public records, and were compiled by MLS Property Information Network, Inc. The property listing data and information are for the personal, non commercial use of consumers having a good faith interest in purchasing or leasing listed properties of the type displayed to them and may not be used for any purpose other than to identify prospective properties which such consumers may have a good faith interest in purchasing or leasing. MLS Property Information Network, Inc. and its subscribers disclaim any and all representations and warranties as to the accuracy of the property listing data and information set forth herein.

Similar Properties

861 Main St, Clinton, Massachusetts, ,Land,For Sale,Main St,73461942

Land

861 Main St, Clinton, Massachusetts

More
11 Lindbergh Street Rear, Clinton, Massachusetts, ,Land,For Sale,Lindbergh Street Rear,73445847

Land

11 Lindbergh Street Rear, Clinton, Massachusetts

More
Realtyna

Copyright © 2026